
An Ode to the O’Donnell Family and a Story of Friendship

An Ode to the O’Donnell Family and a Story of Friendship

HoMie launched at Emporium
Dark Dip 90°/6° - Fire, Ice and Festival Glow during Dark Mofo
Birrarung Walk with Koorie Heritage Trust
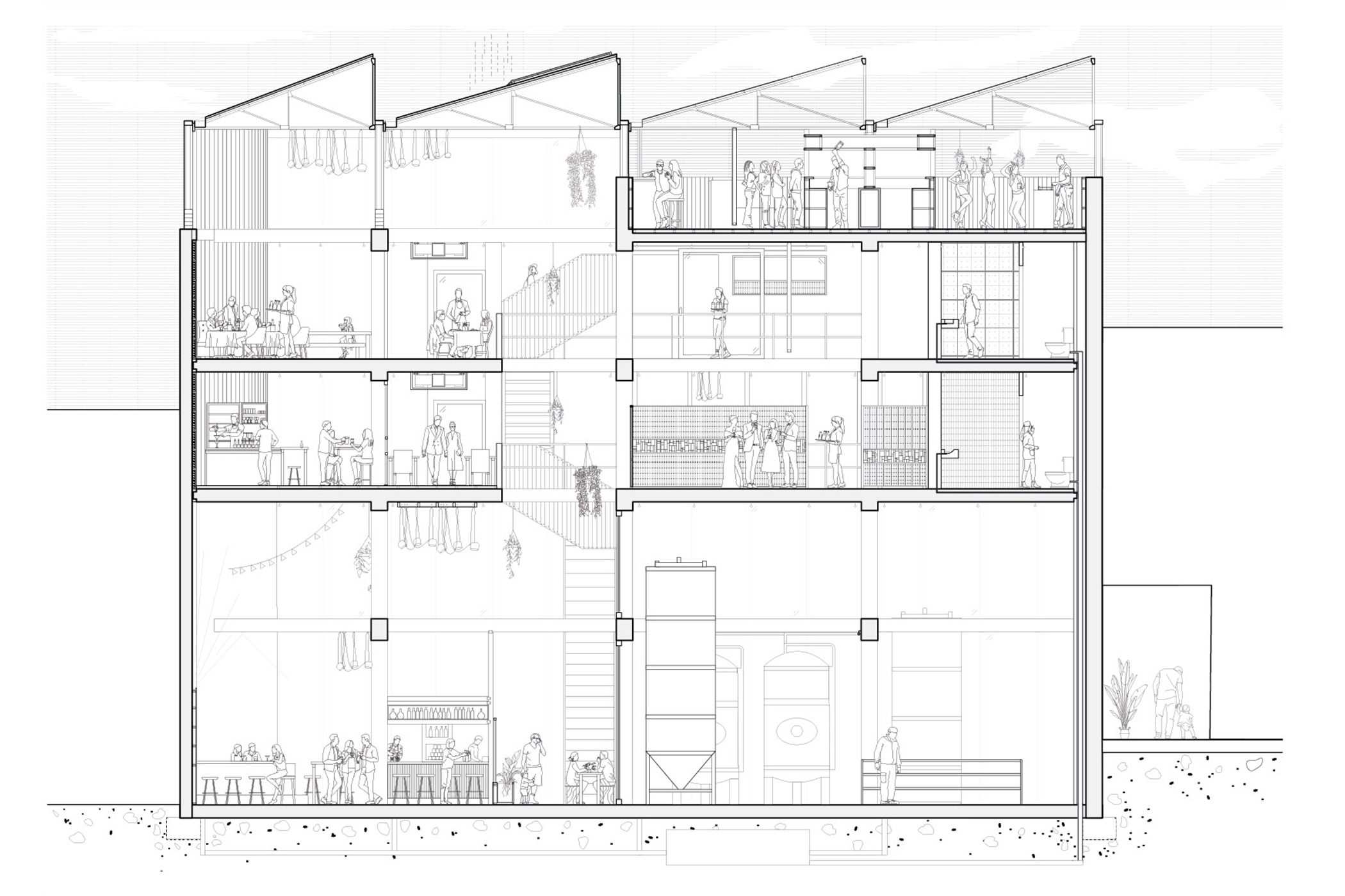
Monash Students Reimagining In The Hanging Garden Precinct
Designing Tomorrow with Monash
Raising the Standard: How Policy Shapes Better Cities
Looking out | Looking in
End of year celebration at narrm ngarrgu
Wominjeka! Welcome to narrm ngarrgu library and family services
Elevations at Six Degrees
Let's build a better future - Six Degrees' Sustainablity Action Plan
Yes 23
Red Dinner - Winter Solstice at Six Degrees
More Trees for the World
Cassette Kensington
Closer to Makarrata - Reconciliation
MTalks—The Architecture of Belonging: Finding the Pulse of a Precinct
SIX DEGREES' PODCAST The Munro Site & Life Between Buildings
Tree Planting Day - A Tribute
A Greener Way of Life - Project update
The Munro Site & Life Between Buildings as part of Open House Melbourne Weekend 2022
30 Years of Architecture
Welcome to Merri, Northcote
Women's Property Initiative







Urban Design Studio Photography by Six Degrees
Image 1: Simon Hong
Image 2: Desmond Li
Image 3: Stefanie Kyricou
Image 4: Byron Jones-Kelly
Image 5: Gia Pham
Image 6: Karin Yankelov
Image 7: Nicholas Ong